Konfigurator domu
Wybierz kategorię oferty

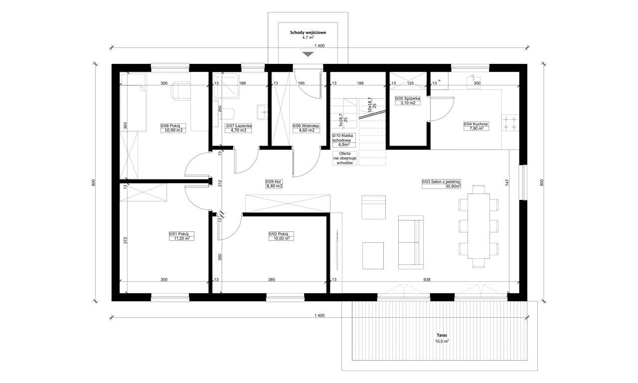
Projekt domu ERDOL 3 XL o powierzchni 97 m² (151 m² w wersji z poddaszem użytkowym) to projekt dla osób, które pragną mieć więcej wygodnej przestrzeni na co dzień. Dom w tej wersji to wydłużony ERDOL 3, dzięki czemu udało się zwiększyć powierzchnię salonu oraz wygospodarować osobną klatkę schodową (dla wersji z poddaszem użytkowym) lub dodatkowe pomieszczenie gospodarcze (dla wersji bez poddasza użytkowego). Jeśli zależy Ci na większym metrażu, ten projekt jest idealny dla Ciebie. Zastosowane w nim nowoczesne technologie i ekologiczne rozwiązania, sprawiają, że jest to dom energooszczędny, który funkcjonuje w harmonii z naturą. Do budowy wykorzystuje się drewno KVH stanowiące podstawę całej konstrukcji. Odpowiednio dobrane materiały izolacyjne sprawiają, że dom chroniony jest przed stratami ciepła.

Projekt ERDOL 3 XL w wybranej konfiguracji posiada dach dwuspadowy z poddaszem użytkowym o kącie nachylenia 35 stopni oraz wyposażony jest w stolarkę okienną PVC firmy EUROCOLOR SYNEGO na profilu marki REHAU o szerokości 80mm w kolorze złoty dąb. Montowane drzwi zewnętrzne to drzwi firmy WIKĘD model 26h, ościeżnica Optimum Termo z szybą reflex.

Zastosowane okna dachowe pokojowe VELUX GLL 1061B FK06 to drewniane okna otwierane od dołu z innowacyjną konstrukcją ThermoTechnology™, z dwustopniową wentylacją. Profil okna wykonany jest z drewna sosnowego malowanego bezbarwnym lakierem akrylowym, a oblachowanie zewnętrzne ma kolor szarografitowy. Więcej szczegółów dostępne w karcie produktu: GLL 1061B.
Okno dachowe łazienkowe VELUX GLU 0061B FK06 to okno drewniano-poliuretanowe otwierane od dołu. Profil okna wykonany jest z drewna sosnowego pokrytego poliuretanem w kolorze białym, a oblachowanie zewnętrzne ma kolor szarografitowy. Więcej szczegółów dostępne w karcie produktu: GLU 0061B.
Szczegóły umiejscowienia okien do ustalenia z koordynatorem budów.

W skład wybranej konfiguracji wchodzi instalacja fotowoltaiczna 6,4 kWp (16 paneli) z inwerterem 3-fazowym 6 kW wraz z montażem. Rozmieszczenie paneli jest przykładowe, szczegóły instalacji do ustalenia z koordynatorem projektu.

Skonfiguruj dom ERDOL STANDARD
Dwustronny kolor okien Nie
W cenie projektu
W sumie
340 500 zł brutto
328 500 zł brutto *
(2 190 zł za m²)
Jesteś zainteresowany naszą ofertą?
Potrzebujesz pomocy lub porady?
Zadzwoń do naszego konsultanta tel. +48 732 717 200
Co zawiera wybrana konfiguracja
Zawartość oferty
  1. Projekt budowlany
  2. Prefabrykowane ściany zewnętrzne z przygotowanymi peszlami pod instalację elektryczną, ociepleniem styropianem, siatka i klej
  3. Prefabrykowane ściany wewnętrzne parteru z przygotowanymi peszlami pod instalację elektryczną
  4. Konstrukcja wiązarowa dachu – bez zamykania/wycieplenia stropu i dachu oraz bez materiału do tych prac
  5. Pokrycie dachowe – dachówka betonowa Brass, kolor antracyt
  6. Rynny Galeco - 2 rury spustowe
  7. Montaż elementów prefabrykowanych
  8. Stolarka okienna 3-szybowa wraz z montażem, kolorystyka zgodnie z wybraną opcją z konfiguratora
  9. Dwa okna dachowe pokojowe VELUX (GLL 1061B FK06) + okno dachowe łazienkowe VELUX (GLU 0061B FK06) z montażem
  10. Drzwi wejściowe wraz z montażem, kolorystyka zgodnie z wybraną opcją z konfiguratora
  11. Montaż pokrycia dachowego i orynnowania
  12. Instalacja fotowoltaiczna 6,4 kWp (16 paneli) z inwerterem 3-fazowym 6 kW wraz z montażem
  13. Transport i montaż w obrębie województwa śląskiego, opolskiego, małopolskiego i dolnośląskiego
Po stronie Inwestora/Zamawiającego
  1. Adaptacja projektu do działki oraz charakterystyka energetyczna budynku
  2. Uzyskanie pozwolenia na budowę
  3. Zatrudnienie kierownika budowy i założenia dziennika budowy
  4. Przygotowanie płyty fundamentowej zgodnie z projektem oraz wytycznymi wykonawcy budynku
  5. Instalacja elektryczna
  6. Instalacja wodno-kanalizacyjna
  7. Instalacja wentylacyjna
  8. Wylewka
  9. Instalacja grzewcza
  10. Zamknięcie/wycieplenie stropu
  11. Zamknięcie/wycieplenie dachu
  12. Zagospodarowanie i aranżacja poddasza, tj. wykonanie wentylacji poddasza, wykonanie podłogi, ścian działowych, sufitów i skosów, rozprowadzenie instalacji elektrycznej oraz wodno-kanalizacyjnej
  13. Gipsowanie, szpachlowanie i szlifowanie ścian i sufitu
  14. Zakup oraz montaż schodów w przeznaczonym do tego miejscu
  15. Wykończenie – malowanie ścian, biały montaż
  16. Wykonanie finalnego tynku na elewacji
  17. Wykonanie przyłączy zewnętrznych
  18. Wykonanie uziemienia budynku (jeżeli jest wymagane)
  19. Wykonanie instalacji odgromowej (jeżeli jest wymagane)

Klientom, którzy zdecydują się na zakup ERDOL HAUS, oferujemy także pomoc w przygotowaniu płyty fundamentowej. Jest to bardzo ważna część budowy, ponieważ to właśnie na niej opierać się będzie cały budynek, dlatego należy zadbać o jej odpowiednie wykonanie. Płyta jest alternatywą dla tradycyjnych fundamentów, a jej głównymi zaletami są zdecydowanie krótszy czas realizacji oraz izolacja termiczna. Wybór tego rozwiązania przyspiesza też kolejne etapy budowy – wykorzystanie płyty fundamentowej pozwala skrócić czas budowy nawet o kilka tygodni.

Realizacja do stanu deweloperskiego
Mapa realizacji do stanu deweloperskiego

 

Wszystkim Klientom budującym dom ERDOL HAUS na terenie całego kraju oferujemy usługę realizacji budynku w standardzie deweloperskim. W celu uzyskania szczegółowych informacji dotyczących tej kwestii, zapraszamy do kontaktu z naszym przedstawicielem.

Porównanie domów ERDOL HAUS
(Kliknij, aby powiększyć)
Zobacz konstrukcję ERDOL 3 XL
Jak przebiega proces budowy?
Umowa
  • Dostarcz dokumenty niezbędne do zawarcia umowy na budowę, tj. Warunki Zabudowy (WZ) lub Miejscowy Plan Zagospodarowania Przestrzennego (MPZP).
  • Podpisz umowę i zyskaj aż do 7 miesięcy gwarancji ceny budowy domu.
  • Wpłać zadatek zgodnie z umową.
Formalności
2-5 miesięcy
  • Odbierz dokumentację projektową (wszystkie niezbędne projekty przekażemy Ci do 45 dni od zawarcia umowy i wpłaty zadatku).
  • Wykonaj adaptację – wrysowanie projektu domu w działkę przez specjalistę posiadającego stosowne uprawnienia.
  • Złóż wniosek o Pozwolenie na Budowę lub zgłoś budowę w przypadku „domu na zgłoszenie”.
Gotowość
  • Prześlij kopię Pozwolenia na Budowę lub zgłoszenia budowy i zgłoś nam gotowość do rozpoczęcia prac.
  • Potwierdź swoją gotowość finansową do rozpoczęcia budów.

* Harmonogram budowy zostanie ustalony po spełnieniu powyższych punktów.

Budowa
2-4 miesięcy
  • Płyta Fundamentowa – dokonaj płatności za jej wykonanie po zgłoszeniu gotowości.

* Wykonanie nastąpi minimum 3-4 tygodnie przed montażem budynku.

  • Montaż budynku w stanie surowym zamkniętym. Dokonaj płatności i do 10 dni od zakończenia prac przy płycie fundamentowej.

* Montaż budynku zajmie nam około 3-7 dni.

Wykończenie
1-3 miesięcy
  • Instalacje wewnętrzne: elektryczna, wod. kan., ogrzewanie, wentylacja mechaniczna (rekuperacja).
  • Stan deweloperski i sucha zabudowa.

* Szczegółowy harmonogram wykończenia domu pozostaje do indywidualnego ustalenia w zależności od ostatecznego zakresu prac.

Zakończenie budowy
  • Przekazanie dokumentacji powykonawczej.
Poznaj wnętrza domów szkieletowych

Abyś mógł dokładnie zapoznać się z projektem ERDOL HAUS, postanowiliśmy zobrazować jego wygląd i przygotowaliśmy dla Ciebie wirtualny spacer, dzięki któremu poznasz układ domu oraz rozmieszczenie poszczególnych pomieszczeń. Mamy nadzieję, że przykładowy projekt wystroju wnętrz stworzony przez naszych projektantów, będzie dla Ciebie pomocną inspiracją na etapie wykańczania budynku i pozwoli Ci wyobrazić sobie, jak pięknie może wyglądać życie w Twoim własnym domu.

Spacer 3D
Wczytywanie...
Zapisz się do naszego newslettera
Dowiaduj się jako pierwszy o promocjach, nowościach oraz wydarzeniach związanych z ERDOL HAUS.

Porozmawiajmy na WhatsApp